Logo

Veronika Likóová

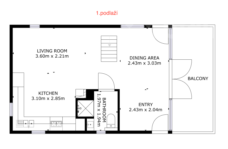
Chata, 70 m2

Vranov

Popis

Nabízíme k prodeji nadstandardní, celoročně obyvatelnou stavbu pro rodinnou rekreaci v unikátní lokalitě u Vranova u Čerčan. Jedná se o zděnou stavbu z roku 2019 (cihla/tvárnice) s moderním dřevěným obkladem, která kombinuje přírodní estetiku s vysokým technickým standardem. V této nemovitosti lze mít trvalý pobyt. Hlavní přednosti objektu: Absolutní soukromí: Pozemek sousedí s polem a vzrostlou zelení. Jakmile se stromy zazelenají, dům je zcela odcloněn od okolí - na terasu ani do oken vám nikdo neuvidí. Moderní technologie: Objekt je vybaven klimatizací (topení/chlazení) a elektrickým kotlem. Voda je řešena vlastní studnou s dostatečnou kapacitou. Eologické řešení odpadů: Na pozemku je vybudována a řádně povolena moderní čistička odpadních vod (ČOV), připravená k okamžitému zprovoznění. Komfortní interiér: Kuchyně je kompletně a vkusně vybavena moderními spotřebiči. Obytný prostor je propojen s velkou terasou, která nabízí nerušený výhled do zeleně a slunce po celý den. Podkroví slouží jako prostorná a klidná zóna pro spaní. Nemovitost má klimatizaci. Technické parametry: Kolaudace: 2019 Konstrukce: Zděná (cihla, zateplení) Inženýrské sítě: Elektřina, studna, ČOV (vodní dílo) Orientace: Slunná strana s výhledem do krajiny Nemovitost je ideální pro náročné zájemce, kteří hledají únik z velkoměsta (30 min od Prahy), ale vyžadují bezúdržbovost novostavby a maximální klid bez sousedů v přímém dohledu. Nemovitost je možné financovat také hypotečním úvěrem. Pro více informací mě neváhejte kontaktovat.

4 500 000 Kč

Hypotéční kalkulačka
od 20 872 Kč měsíčně

ID zakázky 3707392
Aktualizace 30. 3. 2026
Druh objektu Zděná
Stav objektu Bezvadný
Plocha pozemku 370 m2
Užitná plocha 70 m2

Kontaktujte mě

K nemovitosti zajistíme

Financování

Financování

Zajistíme nejvýhodnější financování nového domova. Jsme v přímém kontaktu se všemi bankami, kde konzultujeme vaše požadavky a představy. Připravíme vždy několik variant řešení, ze kterých společně vybereme tu nejlepší právě pro vás.

Energie

Energie

Zajistíme nejen výhodný tarif na míru, ale i kompletní přehlášení a administrativu s tím spojenou. Nemusíte se tak o nic starat, potřebné dokumenty a převod zajistíme za Vás.

Interiéry

Interiéry

Naši designéři se postarají, abyste se v novém domě cítili opravdu doma. Změna stávajícího interiéru je pro nás hračka. Ať už chcete zařídit dětský pokoj nebo rovnou celý dům, naši interiéroví designéři Vám pomohou vybrat barvy, sladit váš stávající nábytek nebo navrhnou celý interiér.

Pojištění

Pojištění

Chráníme váš majetek. Ať už potřebujete pojištění ochrany majetku proti požáru či povodni, pojištění proti úrazům nebo neschopnosti splácet, navrhneme vám nejvýhodnější řešení dle vašich potřeb. Pro naše klienty vybíráme to nejlepší z desítek bank a pojišťoven.

Investice

Investice

Uvažujete, kam investovat peníze z prodeje nemovitosti? Investujte s námi tam, kde to dobře známe a získejte možnost zhodnotit své peníze. Máme pro Vás připravenou nabídku investování do nemovitostních projektů s výnosy investičního fondu od 6 % ročně.

Technologie

Technologie

Nabízíme řešení hybridních fotovoltaických elektráren a chytrého bydlení ve spolupráci se společností LOXONE, pro maximální efektivitu a úsporu energií ve vašem novém domově.

Stěhování

Stěhování

Pomůžeme vám ukončit bez starostí i jeden z posledních kroků a rádi vás do nového domova i přestěhujeme.